Via Marconi

Informazioni

Il nuovo comparto residenziale di Via Marconi prevede la costruzione di sette condomini e nell’insieme, l'attento progetto si traduce in un area ad ampio respiro, che include grandi spazi verdi, una funzionale viabilità ed una distribuzione che garantisce privacy e tranquillità.

L’insediamento, realizzato su un terreno privato con superficie di circa mq. 66.000, è dotato di spazi sia pubblici che privati ed è composto da fabbricati da 5 o 6 piani, dotati di un autonomo accesso si pedonale che carraio e collegati alla viabilità di progetto attraverso strade di lottizzazione.

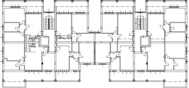
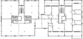
Nel palazzo “GONGOLO”, gli appartamenti sono distribuiti su due scale, una servirà 24 appartamenti per 5 piani più il sottotetto oltre al piano terra e l’interrato, l’altra servirà 16 appartamenti per tre piani più il sottotetto oltre al piano terra e l’interrato.
Tutti gli appartamenti sono dotati di spaziose logge ed ampi terrazzi.
Le distribuzioni interne sono state concepite per sfruttare, in modo pratico e congeniale, ogni superficie ma l'Impresa Ferrari  metterà a disposizione i propri tecnici per le modifiche necessarie a soddisfare ogni esigenza.
Le superfici vanno da 47 mq sino a 170 mq.

Particolare cura è stata dedicata all’utilizzo dei materiali più adatti a garantire confort, risparmio energetico e rispetto per l’ambiente.
A titolo d’esempio menzioniamo le caldaie individuali a condensazione, l’impianto fotovoltaico per l’autoproduzione di energia elettrica sufficiente al fabbisogno condominiale, ascensori a batteria.

PIANO TERRA

PIANO PRIMO e SECONDO

PIANO TERZO  

 

  PIANO QUARTO

PIANO QUINTO

PIANO SOTTOTETTO